20 Division STREET South - $999,995.00

20 Division STREET South,Kingsville - $999,995 - Directions

| | MLS #: | 25030645 | | Price: | $999,995.00 | | Online: | https://www.mik etoldo.ca/prope rty-29138575 |
|  |
Directions
Property Specs
Price$999,995.00
CityKingsville, ON
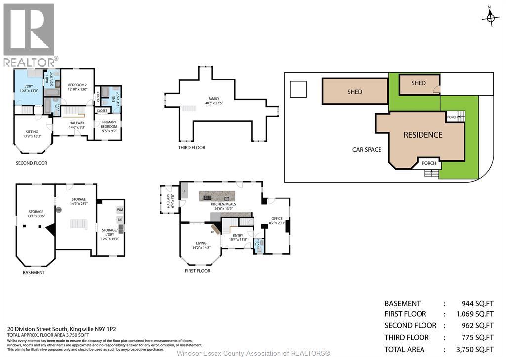
Bed / Bath3 / 3 Full, 1 Half
Address20 Division STREET South
Listing ID25030645
ConstructionBrick
FlooringCeramic/Porcelain, Hardwood
Land Size64.51 X Irregular
TypeHouse
StatusFor sale
Extended Features:
Features Concrete Driveway, Finished DrivewayOwnership FreeholdAppliances Cooktop, Dishwasher, Dryer, Oven, Refrigerator, WasherCooling Central air conditioningHeating Forced air, FurnaceHeating Fuel Natural gas
Details:
It's time to re-imagine 20 Division St in Kingsville! This beautifully restored early 1900's property offers an incredible blend of historical charm and modern amenities, perfect for both residential and business use. On site parking and zoned C2, this versatile space is ideal for offices, a wellness centre, medical aesthetics, or boutique retail, providing endless possibilities for creative entrepreneurs. (id:4555)
topGallery
Displaying 1 through 50 of 50 of 50 in gallery.
top LISTING OFFICE:
Century 21 Erie Shores Realty Inc., Stacey Jones